Overview   |   Gallery   |  The House   |  Amenities   |   Vineyard & Grounds   |   Activities

Overview

Set atop the rolling hills of Umbria, Podere Calzone is an 18th century country estate that has maintained its old-world charm while incorporating all the conveniences and indulgences of the 21st century. The house contains original stone arches, 18th century marble sinks, original beams of the second floor fireplaces and the addition of 18th century hand-painted floor tiles - all painstaking details creating an exceptional property for those with discriminating taste.

 

Gallery

Our home

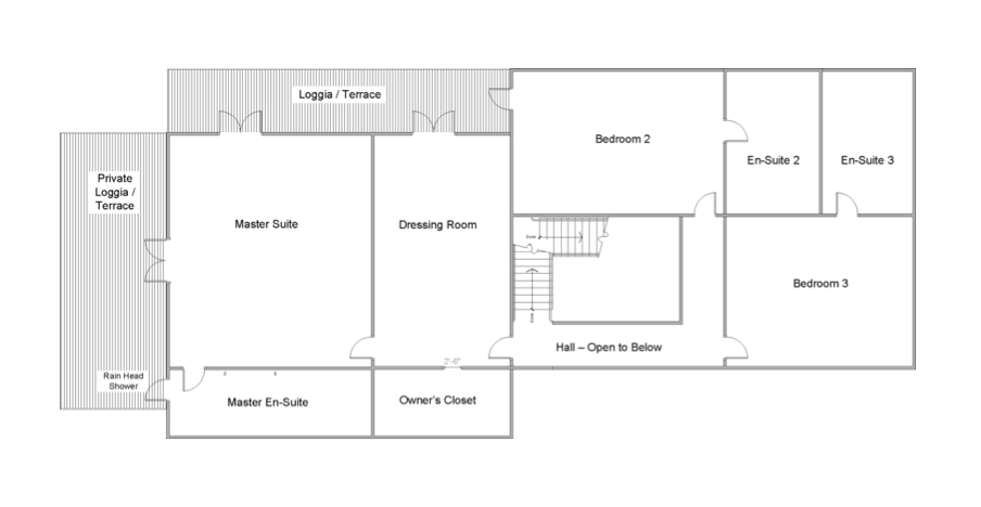
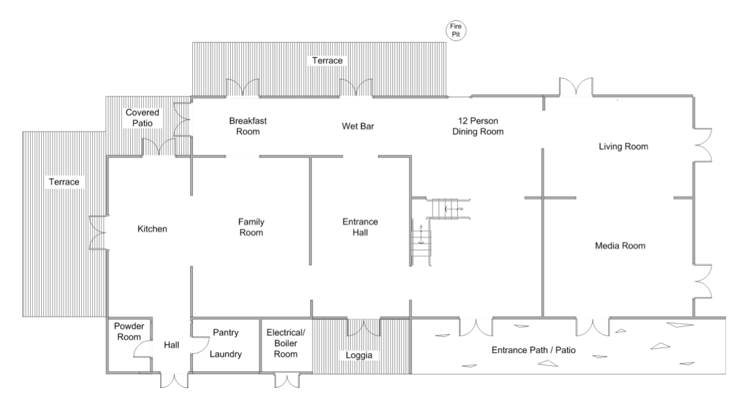
The main house has spacious bedrooms, each with private bath, air conditioning. The private guest apartment has two double rooms, separated by an en-suite bathroom.  The villa has 3 lounge/living areas, a wet bar, a dining room and stone terraces for outdoor dining. 

First floor
Second floor

Amenities

5 Bedrooms (all with air conditioning)

4.5 baths

3 lounge/living rooms

3 terraces for dining and entertainment

Pantry/laundry room

Dishwasher

Clothes washer

Large refrigerator/freezer, separate ice maker

6 burner ILVE gas top stove

2 ILVE ovens

7m x 18m 'zero edge' pool

cantina

Vineyard and Grounds

 

The beautiful stone terraces off the kitchen and breakfast/bar area offer mesmerizing views of the Umbrian countryside.  The lounge areas are a great spot for an 'aperativo' while watching the sun set over the hills.  Next to the striking 7m x 18m pool, a shaded bamboo pergola provides magnificent views, shade and space.

A wood-burning oven and grill is housed in a separate building at the front of the house.  The wood burning grill attached to the structure offers a stone sink, plenty of work space and a large open grill.

 

Golf Long

 

 

The 10-acre vineyard features Merlot and Sangiovese grapes, grown on a sweeping hillside that rises to an elevation of 420 meters.  Learn more about our wine here .  

Activities

With its many open spaces, Podere Calzone is built for country living.  

golf

Who wouldn't want a 250 square meter putting green in their front yard?  Inspired by this thought and the urgent need to work on our short games, we borrowed from #11 at St. Andrews and designed a traditional green and our signature shot from the top of the vineyard. Ten additional shots are played from the grounds and any number of short chips and challenging putts can be practiced.